女王的家丨歐式輕奢,充滿儀式感的精致生活
歐式輕奢,
奢而不膩,端莊優雅,
充滿異域風情的裝修,
讓人在家里也能感受到
歐洲的熱情與奢華。

優雅、浪漫的氣息,
仿佛喝下了一杯充滿異域風情的酒,
在燈光的搖曳之中感受微醺,
又仿佛漫步在歐洲的小鎮上,
空氣中都帶著咖啡醉人的甜香。
455m²歐式輕奢別墅,
屋主偏愛歐式輕奢風格,
以淺色調奠定歐式的優雅格調,
氣質軟裝搭配點綴出生活的精致感。
建筑面積:455m²
建筑小區:滇池南郡
設計師:林杰

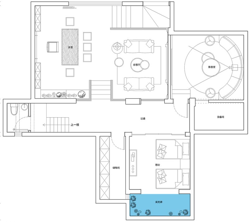
戶型圖

客廳

挑高的客廳設計,入眼即是貴氣典雅的感覺,營造宮廷皇室般的尊貴感。
電視墻采用了大理石結合金屬線條的做法,輝煌大氣的造型,把整個客廳的基調定在了一個“貴”字上,典雅貴氣。
大面積金屬線條的運用,因為空間開闊而不會顯得過于夸張,呈現的是一種奢而不膩的精致感。
墻上的裝飾畫很好的豐富空間層次,增加藝術氛圍。

輕奢感的營造當然少不了鐵藝家具的運用,華貴的水晶燈既彰顯奢華的感覺,又可以比較好的照亮大面積開闊的空間。
餐廳

銀色和金色讓用餐變得高級,造型感十足的燈飾活潑、靈動,減少沉悶的感覺。裝飾畫展現線條的藝術,營造別樣的歐式風情。
吧臺

白色鑲黑邊的柜體簡約時尚,玻璃和金色線條碰撞出個性的氣質。無時無刻不在展現的不羈與浪漫,讓業主在家里愜意享受歐式風情。
衣帽間

衣帽間,濃濃的歐美風,溫柔優雅的一個空間。橢圓形的鏡子在歐美電視劇中是非常常見的元素,是整個空間的點睛之筆。

過道連接衣帽間和休息區,一家人準備出行,丈夫穿戴完畢悠閑的坐在沙發上喝茶看書,等待精心打扮的妻子,不時幫妻子提點建議,一個浪漫的畫面。
臥室

舒適雅致的就寢空間,溫柔的配色高級優雅,淺色系的搭配和舒適的床品、沙發帶來令人舒心的安全感。墻上的裝飾畫和客廳的裝飾畫是相呼應的。
書房

非常具有歐洲特色的書房,玻璃的柜體增加房間的時尚奢華感,顯得房間比較通透。書房同樣選用金屬質地的桌椅。色彩選用的比較鮮明和張揚的棕色、藍色,和古色古色的中式書房是截然相反的。
休閑區


西式浪漫與中式典雅的碰撞,一邊是壁爐、咖啡、面包,一邊是字畫、青松、茗茶,在一動一靜之間感受不同文化的韻味與碰撞出的不同精彩。

過道


過道空間雖然簡潔,精心設計也可以成為充滿儀式感的空間。瓷磚鋪貼增加層次感,搭配兩邊的柱子自成一景。


