新中式VS簡約美式,解鎖不一樣的心動法則
簡約美式VS新中式,
一邊是簡潔靜雅的藝術靈魂,
一邊是穿越千年的典雅貴氣。
帶你遇見不一樣的理想生活。
新中式的美如高山流水,雋永秀麗,貴氣典雅。簡約美式的美,簡潔個性,雅而不俗,空間多表現出浪漫、質樸的氛圍。
今天芒果給大家分享的案例分別是簡美風格和新中式風格,領略不一樣的東西方之美。
設計師


簡約美式風
建筑小區:富春花園
建筑面積:210m²
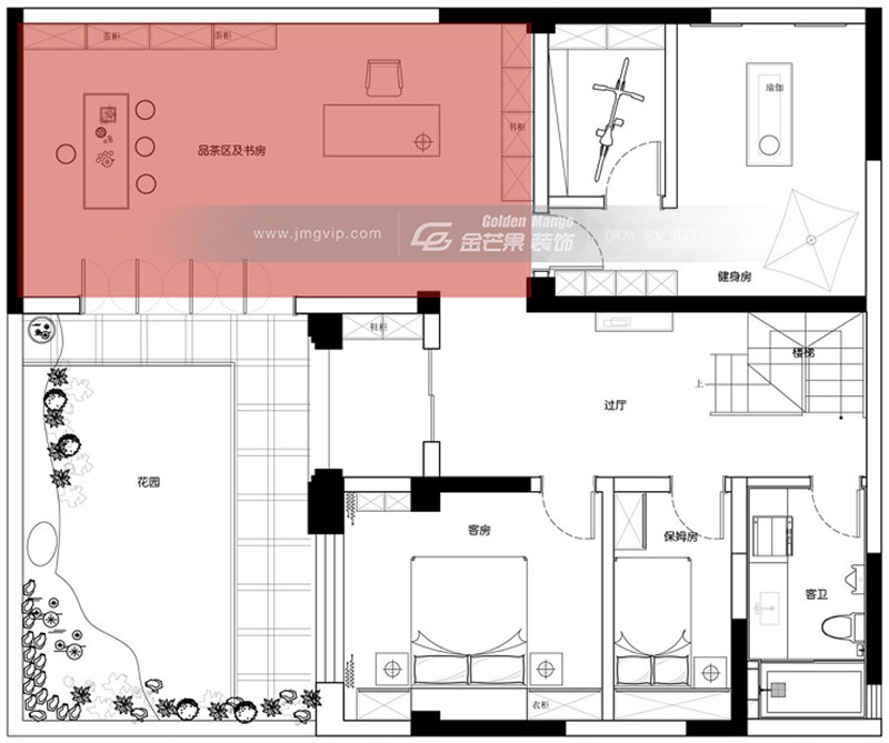
戶型圖

客廳
斜頂的設計營造美式鄉村的樸實、自然的氛圍。沒有濃墨重彩,但又淡雅的恰到好處。美式崇尚熱愛自由,電視背景墻張揚野性的設計,注重突出原始建材的質感,看似粗狂,實則和諧有個性。

房間多處點綴綠植,清新自然,一整面墻的書柜輕松打造美式休閑風。慵懶愜意的下午,泡上一杯咖啡,讀一本自己喜歡的書,靜享這閑適、安逸的優雅時光。

遠近高低各不同,換個角度,就出現不一樣的驚喜。
餐廳

多用實木營造一種久經歲月洗禮的滄桑感。鐵藝在美式風格打造中必不可少,其簡約、流暢的線條讓家居呈現浪漫、優雅的美式氣息。一些美式小擺件亦是點睛之筆。
書房
簡潔明亮的配色清爽明快,深色木地板突出質樸、優雅的感覺。美式的燈具增加濃厚的美式氛圍。

臥室

做舊處理的家具也是美式風格打造中常用的手法,個性質樸的同時突出業主的生活品味。

玄關
入門即是燦爛,保持一天的好心情。

新中式風格
建筑小區:華夏御府
建筑面積:300m²
戶型圖

客廳
相較于簡約美式的簡約、質樸,新中式的貴氣典雅同樣令人心動。

整體暖黃色調營造尊貴婉約的氛圍,中國風的抱枕富有古典韻味,點綴鮮亮的顏色,和墻上的裝飾畫相呼應,點亮整個空間,讓整體空間明亮、典雅不失活潑。

電視背景墻花鳥靈動,梅花高潔,屏風隔而不斷,增加造型感。一縷梅香,一段古韻,品味出的是富有古雅韻味的氣質美家。
餐廳

吊頂和圓桌相呼應,圓圓滿滿,團團圓圓,搭配方正的線條和柜體,在一方一圓之間,體會生活的韻味。
書房
書房同時兼具品茗區的功能,大面積的空間使房間非常開闊,主人即可在此潑墨揮毫,又可在此品茶會友。瓷器、墻上的中式裝飾畫輕松打造中國風。鳥籠狀吊燈為品茗更添幾分滋味。

臥室
中國風的燈飾,大氣和婉約的結合,在此雅韻中休息,身心盡得放松。

庭院
小院閑暇花落處,一縷清風如夢來。中國式庭院是很多人都放不下的情懷。閑暇時間在此種種花,弄弄草,別有一番愜意。和朋友在此喝茶、燒烤、吃點心,都是不錯的選擇。自已一人獨處時,也可一杯茗茶、一卷書香,自得其樂。



